The U.S. military is moving ahead with plans to dramatically expand its presence at Muwaffaq Salti Air Base in Jordan to better accommodate a broad mix of fighter jets, ground attack aircraft, armed drones, cargo planes, and more. The multi-million-dollar construction project comes as President Donald Trump’s administration moves to withdraw American forces from neighboring Syria. But while the new facilities at the Jordanian base could help support continuing Syrian operations indirectly, they will serve a far more important purpose in providing an alternative to other major operational locations in the region, especially in Turkey, where political disputes could hamper U.S. access in the middle of a crisis.
The U.S. Army Corps of Engineers, which is overseeing the work at Muwaffaq Salti, released specifications and drawings related to the new aircraft aprons, taxiways, and other associated facilities on FedBizOpps, the U.S. government’s main contracting website, on Jan. 11, 2019. The documents themselves date to the fall of 2018. The defense budget for the 2018 Fiscal Year included more than $140 million for the upgrades to the Royal Jordanian Air Force base, which the United States has been actively using for regional operations since at least 2013.
The contracting documents do not mention Muwaffaq Salti by name, which the U.S. military generally describes as an “undisclosed location,” but include annotated satellite images that clearly show that it is the base in question. Previous contracting announcements have indicated that the U.S. Air Force’s 407th Air Expeditionary Group presently oversees day-to-day operations at the base.
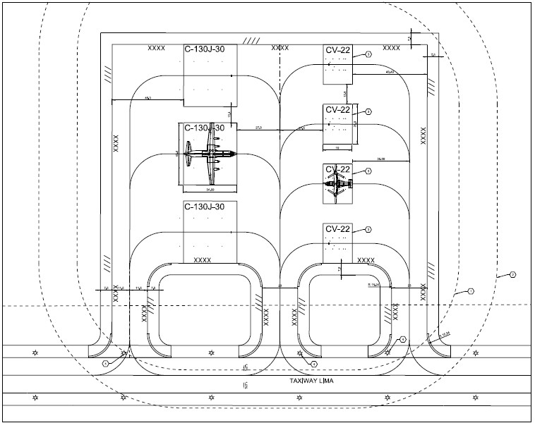
The U.S. military’s new additions appear focused on growing the Air Force’s presence at the base specifically and the bulk of the improvements will be along the southern runway at the base. These include an airlift apron, a personnel recovery and special operations forces apron, and a close air support (CAS) and intelligence, surveillance, and reconnaissance (ISR) apron.


The nearly 300,000 square foot airlift apron, which will have an attached 40,000 square foot cargo marshaling yard, will be big enough to accommodate up to two C-17 Globemaster III and one C-5 Galaxy cargo aircraft at once. This will enable to movement of large amounts of personnel, ammunition, fuel, and other materiel in and out of the base, all of which would be vital for sustained air operations.
Muwaffaq Salti could also act as a trans-shipment point, with crews loading cargo onto smaller aircraft, such as C-130 Hercules for movement to other forward operating locations elsewhere in the region. The C-17s also have the ability to operate from unimproved airstrips, too. The U.S. construction plan at Muwaffaq Salt includes a nearly 280,000 square foot “hot” cargo pad on the north side of the base for rapid unloading and loading of materiel from transient aircraft, as well.

Back at the southern portion of the base, the United States also plans to add in a 450,000 square foot personnel recovery and special operations forces apron. This will have parking spaces sized for the extended-length C-130J-30 airlifter, but would most likely be home to detachments of special operations MC-130s. There will also be space for four CV-22B Osprey tilt-rotors.
The Air Force’s MC-130s can act as tankers for the CV-22s, helping extend their range and giving special operations forces the ability to rapidly move small units and cargo to and from dispersed sites in the region or to support air assaults on particular targets. In addition, the Ospreys have a speed advantage over traditional helicopters, as well as various electronic countermeasures and other self-defense systems and nap-of-the-earth flight capabilities, all of which helps the aircraft get to the objective area quickly and reduce its vulnerability to hostile defenses.
As such, CV-22s in Jordan could be on call to insert reinforcements, extract wounded individuals or forces under fire, perform combat search and rescue (CSAR) missions, and other personnel recovery functions, as well. CASR is an especially important consideration for sustained air operations and one where the United States has historically limited options in the region. For instance, at present, the U.S. military has detachments in Kuwait, Iraq, and Turkey to provide that kind of capability in Iraq and Syria.

The so-called “CAS/ISR” apron will be, by far, the biggest single addition, covering almost 1,350,000 square feet. This will allow the United States to build three dozen parking spots with protective revetments and sunshades, all sized for F-15 or F-16 fighter jets, as well as A-10 ground attack aircraft. There will be another apron with four spots for MQ-9 Reapers, as well as multiple enclosed shelters each able to accommodate two of the drones, attached to this area, as well.
Though described as CAS/ISR focused for construction planning purposes, this would give the United States the ability to use Muwaffaq Salti for expanded air combat operations more broadly. The aircraft this apron can accommodate could perform combat air patrols, interdiction, and various other missions.

The sizing of the parking spaces could allow for the deployment of other combat jets, including from services other than the U.S. Air Force, as necessary, too. In September 2018, the Air Force conducted a temporary deployment of F-22 Raptor stealth fighters from Al Dhafra Air Base in the United Arab Emirates to Muwaffaq Salti, along with supporting personnel in a KC-10 Extender tanker aircraft.
This is something that could become more common, and require less outside support, with the infrastructure upgrades. The U.S. Marine Corps also operates a land-based crisis response force with F/A-18C/D Hornets, among other aircraft, which could make use of the expanded facilities.
The video below shows the F-22s from the Air Force’s 380th Air Expeditionary Wing deploying to an “undisclosed location” September 2018.
In addition to the various aprons, the U.S. military will build new taxiways, access roads, life support areas, and other associated infrastructure to support the larger American presence at Muwaffaq Salti. The Army Corps of Engineers estimates the work will cost between $25 and $100 million, leaving significant funds left over for other additions, as well. The due date for contractors to submit their bids on this deal is Feb. 19, 2019, but there is no estimated schedule for when the work might get finished.
The plan does make it clear that the United States is looking to grow its presence at the site and turn it into a more permanent, strategic base. This could be important given the Trump Administration’s efforts to extricate American forces from Syria.
The exact timeline for that withdrawal remains unclear. It also remains to be seen how U.S. policy with regards to the ongoing fight against ISIS in Syria and Iraq, as well as with respect to the broader conflict in Syria, will evolve.
There have been reports that U.S. forces are likely to move into facilities in other neighboring countries. From there, they could remain close by to support American-backed local forces and other U.S. partners still fighting in Syria as necessary.

Though Iraq has been cited as the most likely country to accept the units withdrawing from Syria, Jordan could easily be another option and already hosts a significant American military presence. On top of that, some members of Iraq’s parliament were incensed that Donald Trump did not meet personally with the country’s Prime Minister Adil Abdul-Mahdi during his surprise visit to the country in December 2018.
Members of the current coalition government in Iraq, which is also looking to improve relations with Iran, have since called for a complete withdrawal of American forces from the country. Whatever the outcome of this particular spat, it could limit the U.S. military’s ability to use bases in that country in the future.
The expansion of Muwaffaq Salti could reduce the need for other regional operating locations that have become increasingly politically untenable recent years, in general. When the general plan first became public in 2017, it came at a time when there were also significant concerns about the continued viability of Al Udeid Air Base in Qatar, which is the largest American air base in the Middle East and has been a central hub for operations in the region and beyond for decades now. You can read more about how vital that base is for the U.S. military here.
Unfortunately, Qatar remains embroiled in a major political spat with Saudi Arabia, the United Arab Emirates, and Egypt, among others, who have cut off diplomatic relations and blockaded the country economically. However, U.S. Secretary of State Mike Pompeo signed a memorandum of understanding with Qatari officials to begin plans to significantly expand Al Udeid, as well, during a visit to the country on Jan. 13, 2019.

“We’re all more powerful when we’re working together,” Pompeo said at a press conference, where he also said the nearly 20 month-long dispute between Qatar and other countries in the region had “dragged on too long.” America’s top diplomat is now in Saudi Arabia and will, among other things, likely continue to advocate for a resolution to the situation.
Beyond that, Muwaffaq Salti is some 1,000 miles away from Al Udeid, making it poorly situated to be a substitute for that base. It seems more likely that the primary driving force behind the expansion in Jordan is long-simmering tensions between the United States and Turkey. Despite both being members of NATO, both countries have drifted apart over a host of disputes, including Turkey’s decision to purchase S-400 surface-to-air missiles from Russia, Ankara’s increasing ties with Moscow broadly, and the United States support for Kurdish groups in Syria that Turkish authorities view as terrorists.

Turkey and the United States are also embroiled in a dispute over Fethullah Gülen, a former political ally of the increasingly dictatorial Turkish President Recep Tayyip Erdoğan, who now lives in self-imposed exile in the United States. Turkish authorities accuse Gülen of masterminding a 2016 attempted coup against Erdoğan, but the United States has so far refused, citing insufficient evidence.
The question of American support for the Kurds specifically was a major factor in Trump’s initial decision to withdraw U.S. forces from Syria and the safety of Kurdish civilians in any areas where Turkish or Turkish-backed forces might take control of has since become an equally serious question. U.S. authorities have since demanded assurances from Turkey that it will not seek to attack the Kurds and Trump himself has threatened to “devastate Turkey economically” if Ankara doesn’t agree to those terms.
The president also insisted he did not want the Kurds to “provoke” Turkey, either. It is not entirely clear if “Kurds” in this case refer to Kurdish civilians, the predominantly Kurdish U.S.-backed Syrian Democratic Forces group that is fighting ISIS, or both. Turkey has repeatedly declared its intentionto crush Kurdish fighters, even if they’re aligned with the SDF, across northern Syria.
It is also worth noting that the United States provides intelligence and other support for Turkish military operations against other Kurdish militant groups that are active within Turkey. So, how the Turkish government might interpret any demands from their American counterparts and how willing the United States might actually be to respond to any apparent violations of those stipulations remains to be seen.
All of this presents a standing risk that access to Incirlik Air Base, a major regional hub for the U.S. military that serves as a base for combat jets operating in the region, a tactical nuclear weapons storage site, and as an important trans-shipment point, could end at a critical moment. Muwaffaq Salti, less than 400 miles to the south, is well positioned to supplant Incirlik, as well as other operating locations in Turkey, for conventional operations if the Turkish government was to force a halt to American operations from those bases.
All told, the upgrades to Muwaffaq Salti will boost America’s ability to operate in that part of the Middle East outside of any presently ongoing operations, in Syria or elsewhere, for years to come and will only further cement U.S.-Jordanian relations. With that in mind, we may begin to see work at other sites in Jordan in addition to Muwaffaq Salti in the coming years. If the Army Corps of Engineers’ estimates are accurate, there will be tens of millions of dollars left for construction projects in the country.
Contact the author: jtrevithickpr@gmail.com